







Agentia Imobiliara Alyelite Consult ofera spre vanzare apartament decomandat situat la etajul 1 al unui bloc cu regim de inaltime p+3, localizat in orasul Vaslui, zona Ultracentrala, vis-a-vis de Primarie
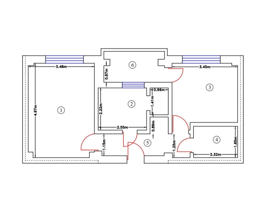
Detalii apartament: 45 mp utili Etaj 1/3, an constructie bloc 1970, necesita amenajare
Destinatie: rezidential, alcatuit din living, bucatarie, 1 dormitor, 1 grup sanitar, 1 hol
Utilitati: Apa, electricitate, canalizare, gaze, centrala
Detalii tehnice cladire: Beton, caramida
In procesul de cumparare a acestei proprietati veti fi ajutati de consultantul imobiliar Petrut Ciubotaru, care va oferi toate detaliile necesare si va va ghida pe tot parcursul achizitionarii. Tot ce trebuie sa faceti este sa apelati la numarul de telefon din anunt.